︎
HEP
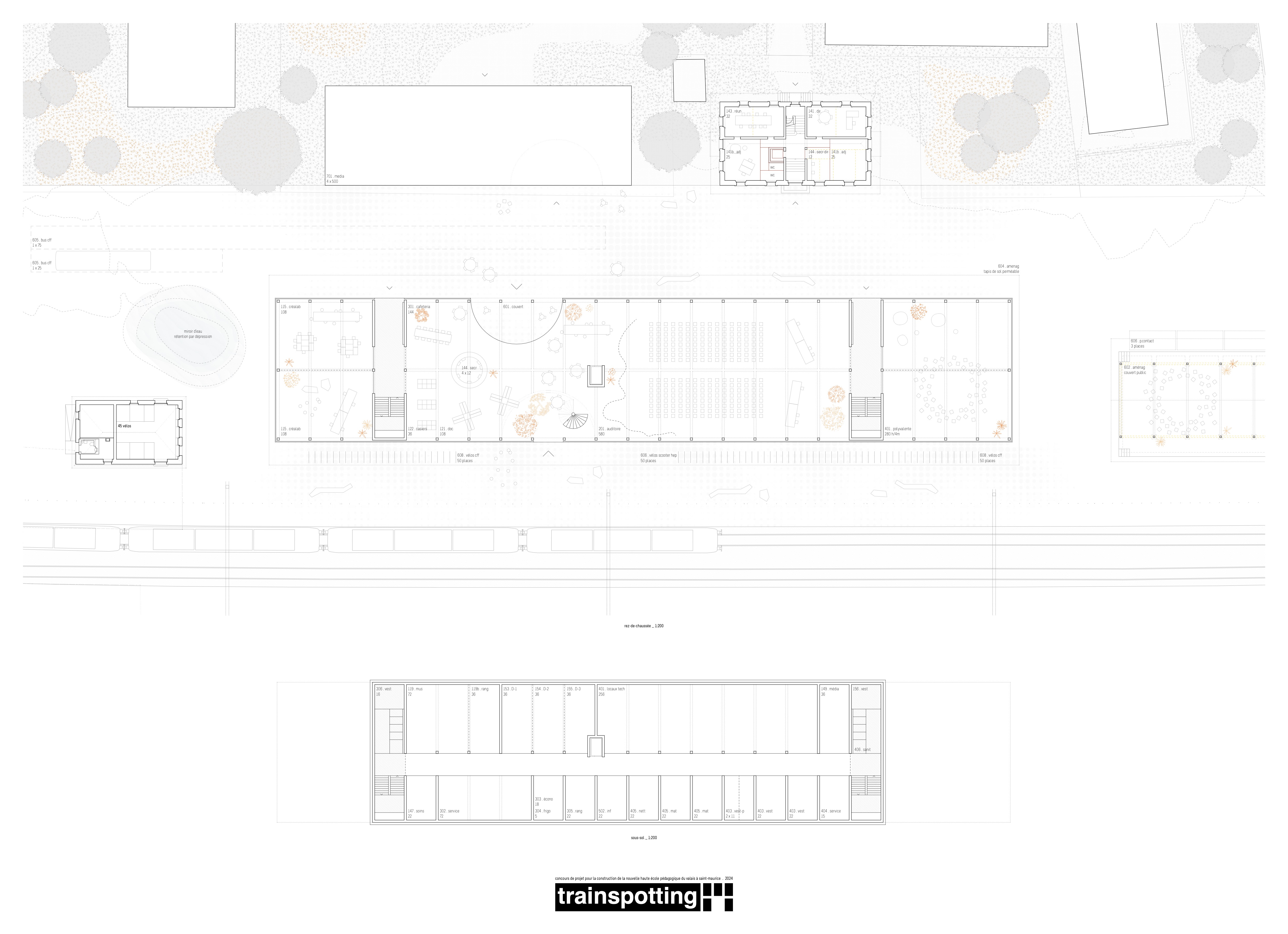
st-maurice
campus hep - concours
projet 2025
32’500 m3
︎
←
︎
→