︎
RID
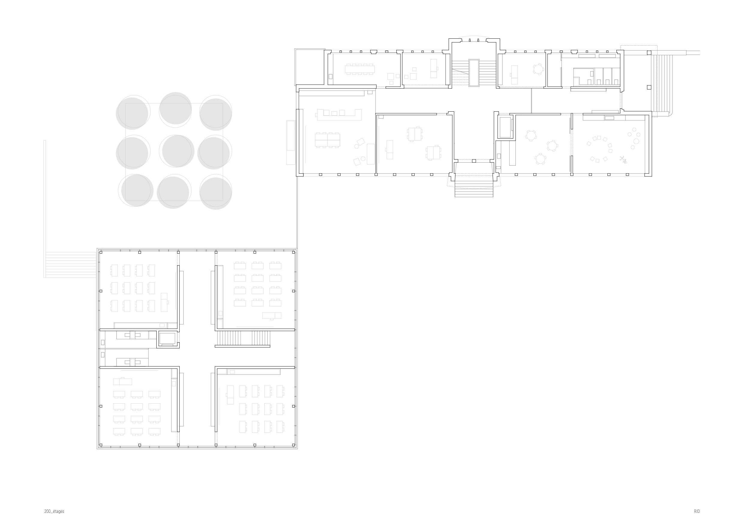
riddes
centre scolaire
réalisation 2018
8’100 m3
︎
photos © michel bonvin
←
︎
→