︎
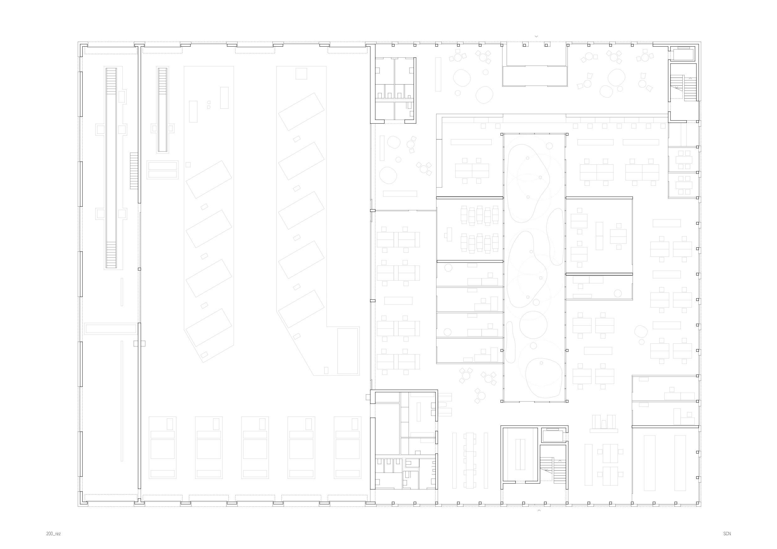
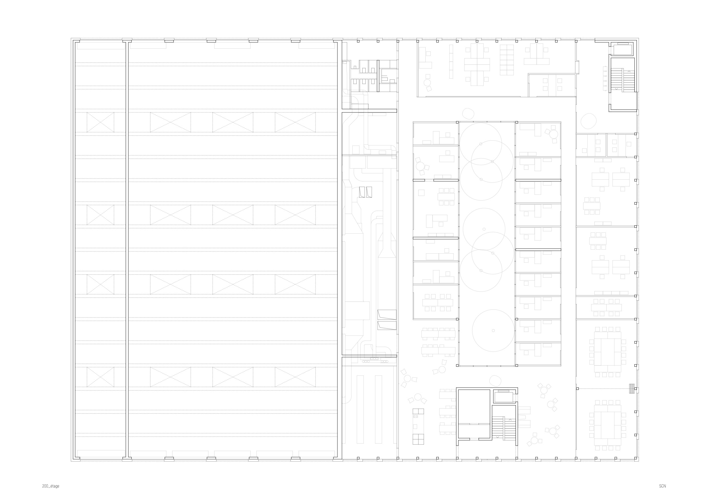
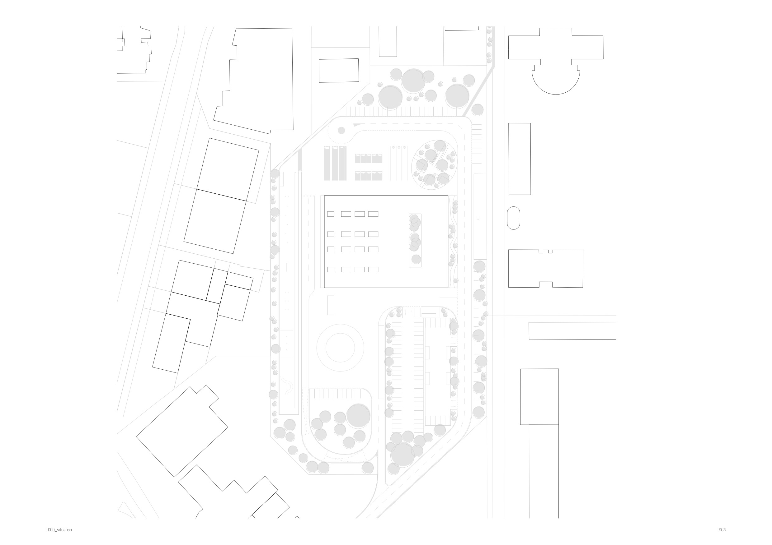
SCN
sion
service de la circulation et de la navigation
réalisation 2022
27’300 m3
︎
photos © michel bonvin
←
︎
→